Brightside Avenue, Staines-upon-Thames, Surrey

Under Offer £450,000

bedrooms 3bathrooms 1receptions 1

ENJOYING VIEWS OVER OPEN FIELDS TO THE REAR, THIS SPACIOUS THREE BEDROOM SEMI-DETACHED PROPERTY OFFERS GREAT SCOPE FOR IMPROVEMENT/EXTENSION (S.T.R.P.P). The property is located along this much sought after road ideally positioned for easy access to Staines Town Centre, Mainline Train Station, local shops and Schools and benefits from a spacious kitchen/diner, lounge, three well-proportioned bedrooms, shower room, large secluded rear garden, off-street parking and garage. No Onward Chain. Viewings Highly Recommended!

  • VIEWS OVER OPEN FIELDS TO REAR
  • NO ONWARD CHAIN
  • GREAT SCOPE FOR ALTERATION/EXTENSION (S.T.R.P.P)
  • OFF-STREET PARKING & GARAGE
  • WELL-PROPORTIONED ACCOMODATION
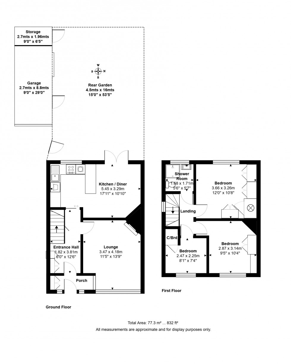
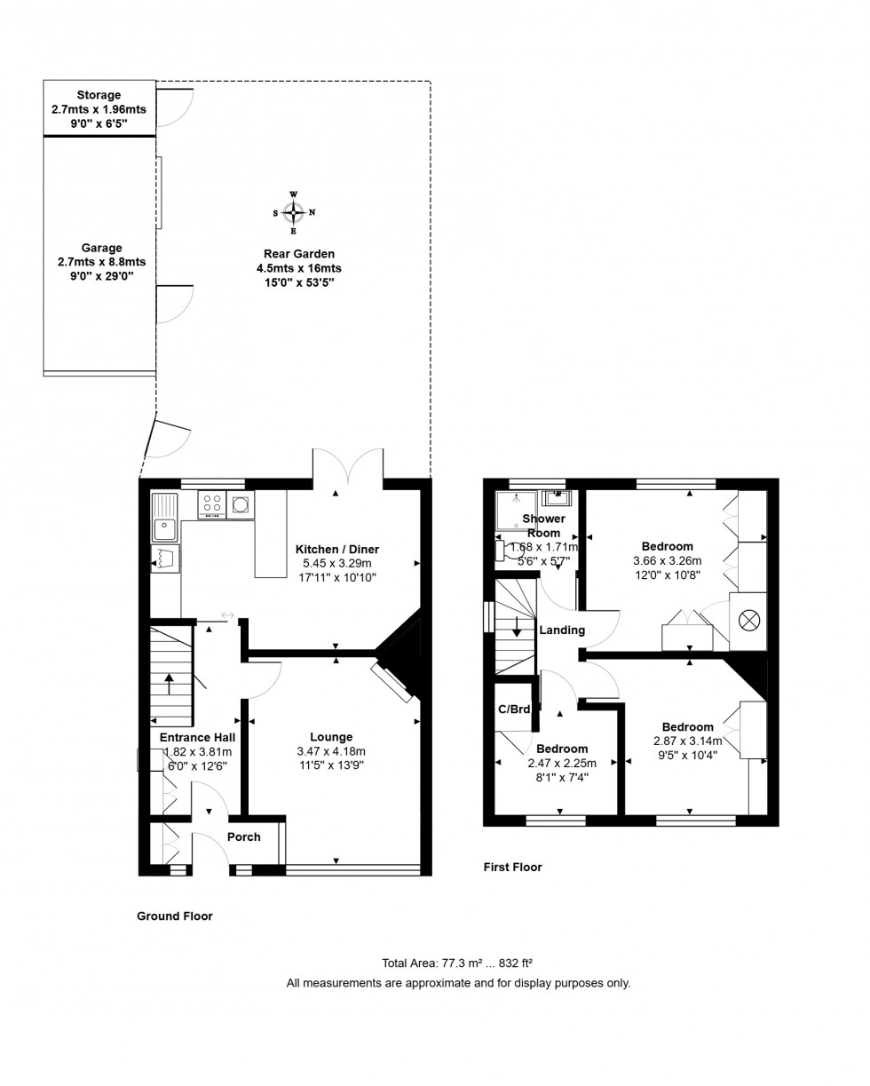
Floorplan for Brightside Avenue, Staines-upon-Thames, Surrey
instant online valuation

Book a valuation

Find out how much your property is worth