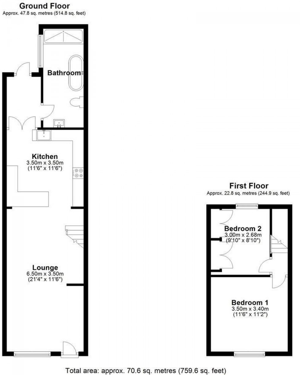
VERY WELL PRESENTED & SPACIOUS TWO BEDROOM CHARACTER PROPERTY SITUATED ALONG THIS SOUGHT AFTER ROAD IDEALLY POSITIONED FOR EASY ACCESS TO STAINES TOWN CENTRE, MAINLINE TRAIN STATION, LOCAL MOTORWAY NETWORKS & HEATHROW AIRPORT. The property benefits from a spacious lounge/diner, modern kitchen/breakfast room, two well-proportioned bedrooms, luxury white bathroom suite, large secluded rear garden, off-street parking and garage. Viewings Highly Recommended!
VERY WELL PRESENTED & SPACIOUS TWO BEDROOM CHARACTER PROPERTY SITUATED ALONG THIS SOUGHT AFTER ROAD IDEALLY POSITIONED FOR EASY ACCESS TO STAINES TOWN CENTRE, MAINLINE TRAIN STATION, LOCAL MOTORWAY NETWORKS & HEATHROW AIRPORT. The property benefits from a spacious lounge/diner, modern kitchen/breakfast room, two well-proportioned bedrooms, luxury white bathroom suite, large secluded rear garden, off-street parking and garage. Viewings Highly Recommended!
WELL PRESENTED CHARACTER PROPERTY
OFF-STREET PARKING & GARAGE
WITHIN MOMENTS OF TOWN CENTRE & MAINLINE TRAIN STATION
EASY ACCESS TO LOCAL MOTORWAY NETWORKS & HEATHROW AIRPORT