Leacroft Close, Staines-upon-Thames, Surrey

For Sale £725,000

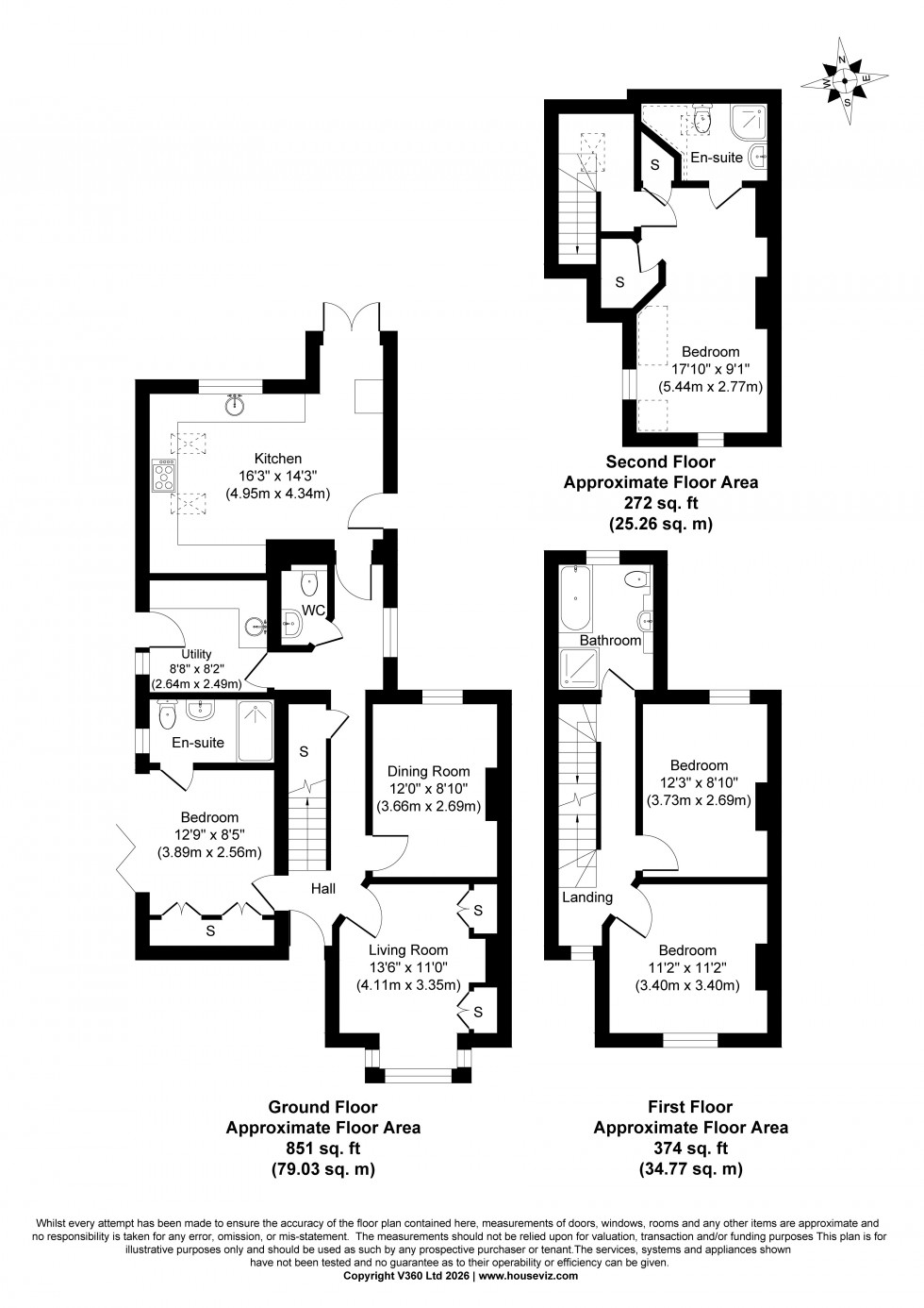
bedrooms 4bathrooms 3receptions 2

WELL PRESENTED & SPACIOUS FOUR BEDROOM SEMI-DETACHED CHARACTER PROPERTY SITUATED ALONG THIS MUCH SOUGHT AFTER CLOSE IDEALLY POSITIONED FOR BOTH STAINES TOWN CENTRE & MAINLINE TRAIN STATION & FOR EASY ACCESS TO LOCAL MOTORWAY NETWORKS & HEATHROW AIRPORT. The property offers a wealth of flexible accommodation benefitting from a spacious lounge, dining room, modern kitchen/breakfast room with separate utility, downstairs W.C, four well-proportioned bedrooms, three modern bathrooms (2 en-suite), large secluded rear garden and off-street parking. Viewings Highly Recommended!

  • HUGELY SPACIOUS CHARACTER PROPERTY
  • WITHIN MOMENTS OF TOWN CENTRE & MAINLINE TRAIN STATION
  • EASY ACCESS TO LOCAL MOTORWAY NETWORKS & HEATHROW AIRPORT
  • MODERN KITCHEN & BATHROOMS
  • THREE BATHROOMS
  • DOWNSTAIRS W.C
Floorplan for Leacroft Close, Staines-upon-Thames, Surrey
instant online valuation

Book a valuation

Find out how much your property is worth