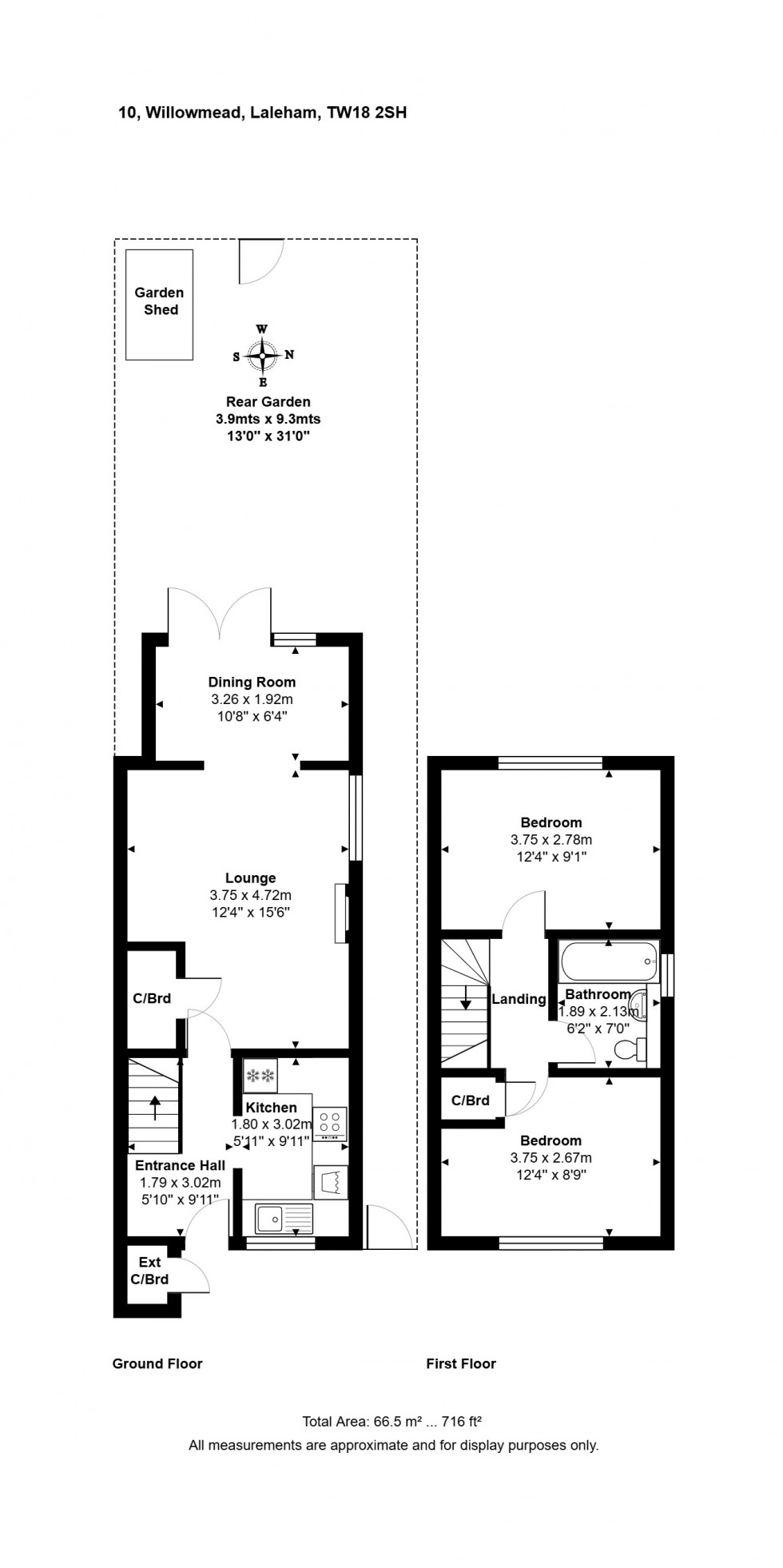
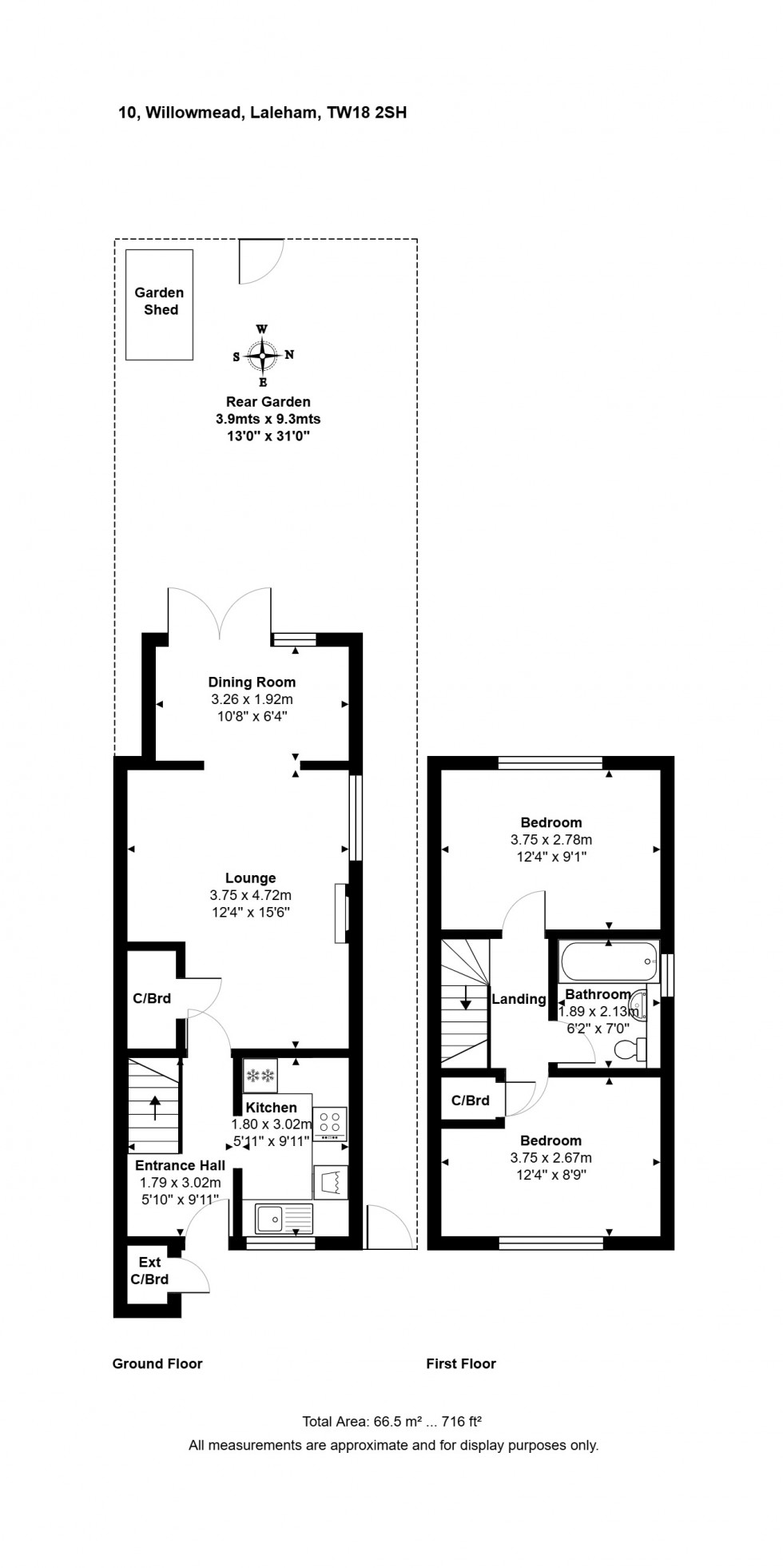
WELL PRESENTED & EXTENDED END-TERRACED PROPERTY SITUATED ALONG THIS SOUGHT AFTER CLOSE OF SIMILAR-STYLE PROPERTIES IDEALLY LOCATED FOR EASY ACCESS TO STAINES TOWN CENTRE, LOCAL MOTORWAY NETWORKS & HEATHROW AIRPORT. The property benefits from a spacious lounge, separate fitted kitchen, dining room, two double bedrooms, modern white bathroom suite, secluded rear garden and off-street parking. Viewings Highly Recommended!
WELL PRESENTED & EXTENDED END-TERRACED PROPERTY SITUATED ALONG THIS SOUGHT AFTER CLOSE OF SIMILAR-STYLE PROPERTIES IDEALLY LOCATED FOR EASY ACCESS TO STAINES TOWN CENTRE, LOCAL MOTORWAY NETWORKS & HEATHROW AIRPORT. The property benefits from a spacious lounge, separate fitted kitchen, dining room, two double bedrooms, modern white bathroom suite, secluded rear garden and off-street parking. Viewings Highly Recommended!
EXTENDED
TWO DOUBLE BEDROOMS
EASY ACCESS TO LOCAL MOTORWAY NETWORKS & HEATHROW AIRPORT