Vicarage Lane, Staines-upon-Thames, Surrey

Under Offer OIEO £1,000,000

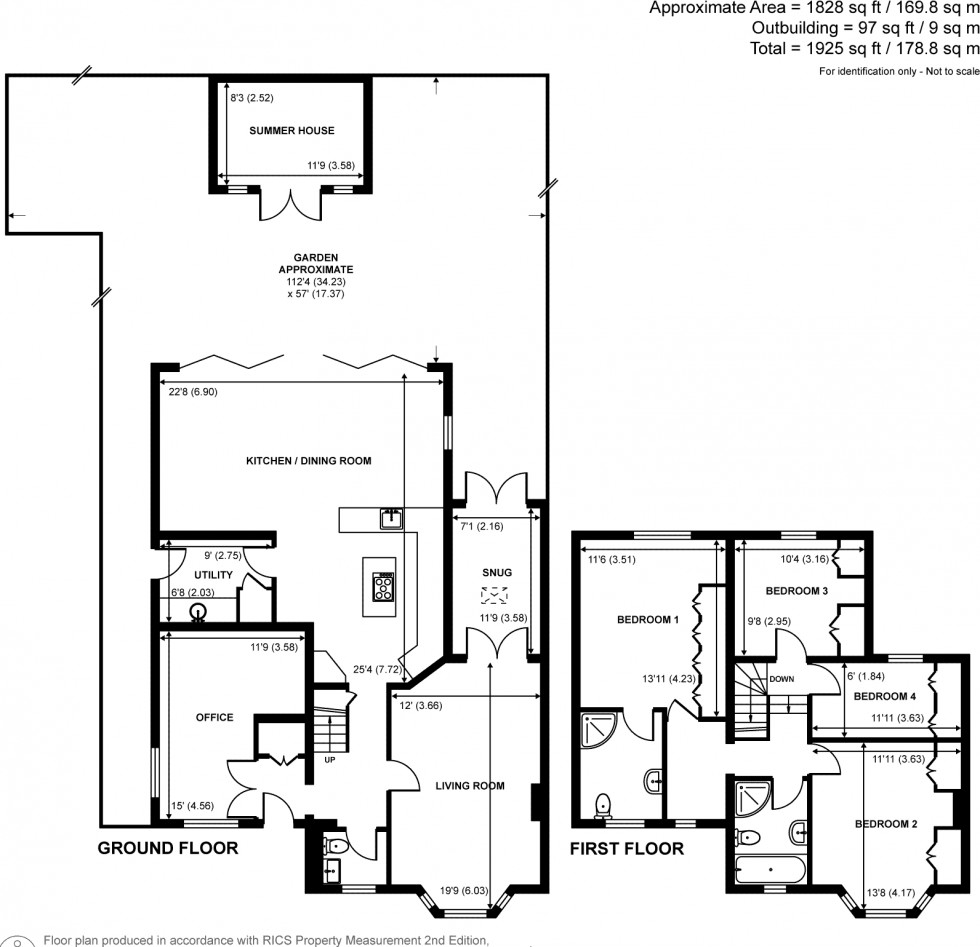
bedrooms 4bathrooms 2receptions 4

STUNNING DETACHED PROPERTY SITUATED ALONG THIS MUCH SOUGHT AFTER ROAD IN THE HEART OF LALEHAM VILLAGE, IDEALLY POSITIONED FOR EASY ACCESS TO STAINES, ASHFORD & SHEPPERTON, LOCAL SHOPS & SCHOOLS & THE RIVER THAMES. The property has been lovingly extended and updated by the current owners and offers the perfect blend of character and charm with modern luxury and benefits from a spacious living room leading to snug, sitting room/office, luxury kitchen/diner/family room with separate utility, downstairs W.C, four well-proportioned bedrooms (en-suite to Bed 1), further modern white bathroom suite, extensive south-facing rear garden with timber outbuildings and further garden section to rear and side. This wonderful property really must be viewed to be fully appreciated.

  • STUNNING DETACHED PERIOD HOME
  • MUCH SOUGHT AFTER NO-THROUGH ROAD
  • EXTENSIVE SOUTH-FACING REAR GARDEN
  • OFF-STREET PARKING
  • PERFECT BLEND OF CHARACTER & CHARM WITH MODERN LUXURY
Floorplan for Vicarage Lane, Staines-upon-Thames, Surrey
instant online valuation

Book a valuation

Find out how much your property is worth