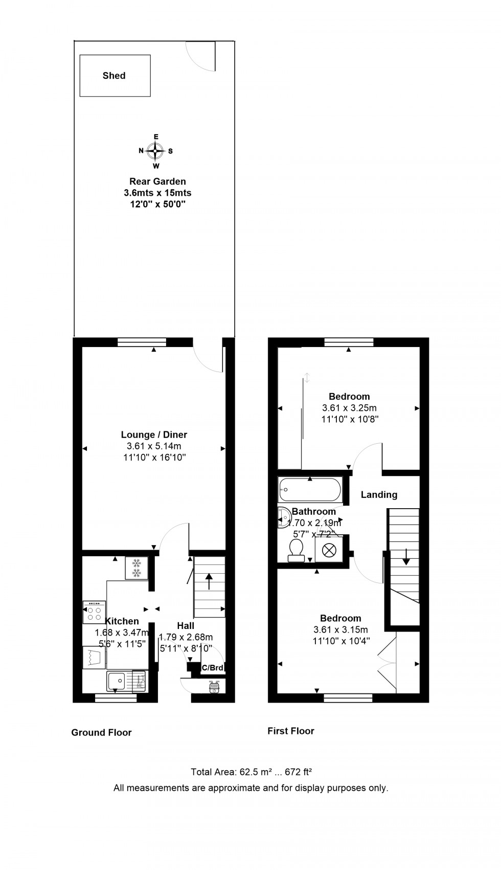
STUNNING TWO BEDROOM HOUSE SITUATED ALONG POPULAR NO-THROUGH ROAD IDEALLY LOCATED FOR STAINES, EGHAM & CHERTSEY TOWN CENTRES & LOCAL MOTORWAY NETWORKS. The property benefits from a spacious lounge/diner with patio doors to rear garden, separate modern fitted kitchen, two large double bedrooms, modern white bathroom suite, large secluded rear garden, off-street parking and garage. Viewings Highly Recommended!
STUNNING TWO BEDROOM HOUSE SITUATED ALONG POPULAR NO-THROUGH ROAD IDEALLY LOCATED FOR STAINES, EGHAM & CHERTSEY TOWN CENTRES & LOCAL MOTORWAY NETWORKS. The property benefits from a spacious lounge/diner with patio doors to rear garden, separate modern fitted kitchen, two large double bedrooms, modern white bathroom suite, large secluded rear garden, off-street parking and garage. Viewings Highly Recommended!
STUNNING CONDITION
IDEAL FOR LOCAL MOTORWAY NETWORKS
EASY ACCESS TO STAINES, EGHAM & CHERTSEY TOWN CENTRES