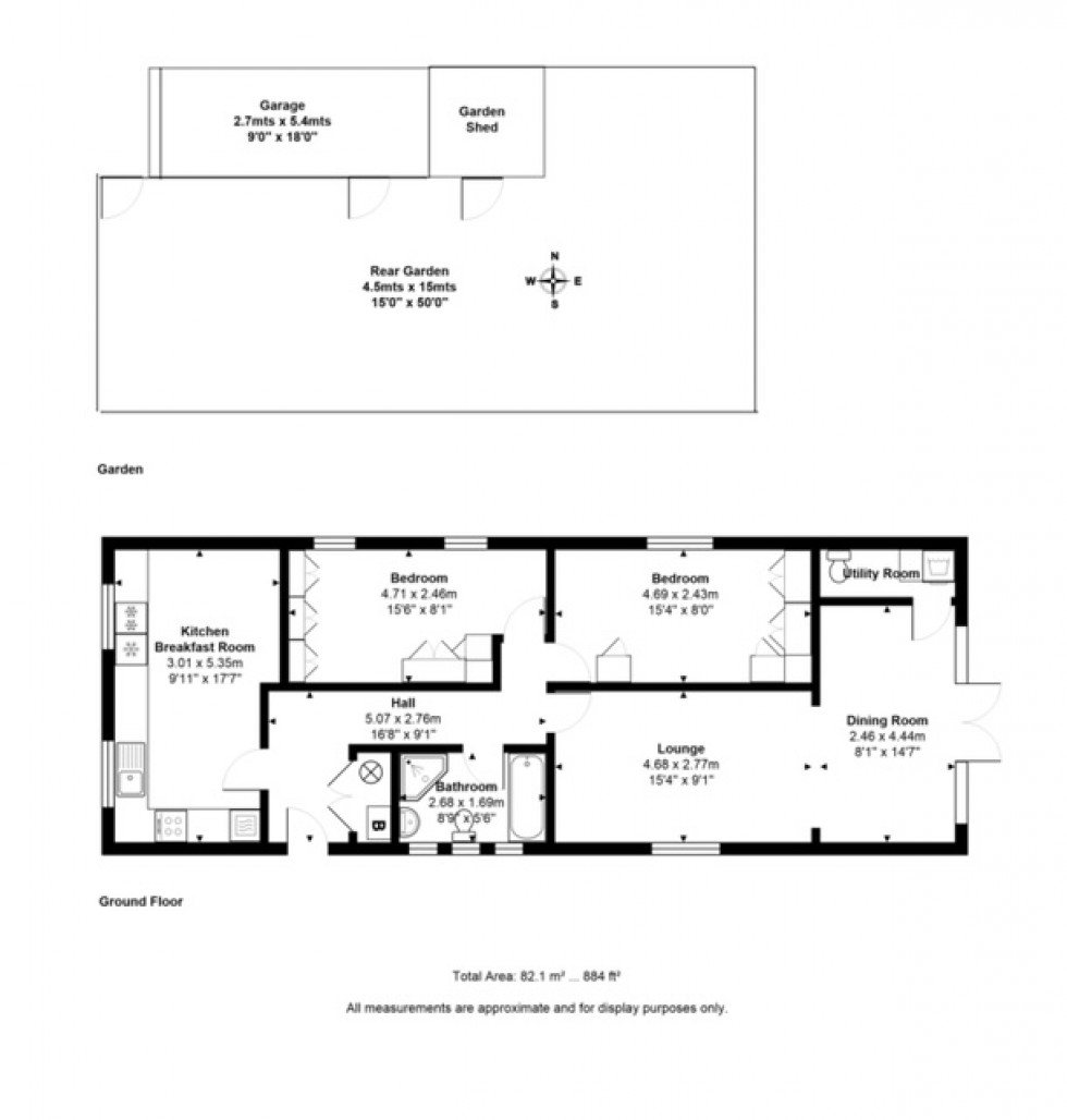
WELL PRESENTED & SPACIOUS DETACHED BUNGALOW SITUATED ALONG THIS SOUGHT AFTER ROAD IDEALLY LOCATED FOR TOWN CENTRE, MAINLINE TRAIN STATION, LOCAL MOTORWAY NETWORKS & HEATHROW AIRPORT. The property benefits from a spacious lounge/diner, separate fitted kitchen/breakfast room, utility/W.C, two double bedrooms, modern white four-piece bathroom suite, large secluded rear garden, garage and off-street parking. No Onward Chain. Viewings Highly Recommended!
WELL PRESENTED & SPACIOUS DETACHED BUNGALOW SITUATED ALONG THIS SOUGHT AFTER ROAD IDEALLY LOCATED FOR TOWN CENTRE, MAINLINE TRAIN STATION, LOCAL MOTORWAY NETWORKS & HEATHROW AIRPORT. The property benefits from a spacious lounge/diner, separate fitted kitchen/breakfast room, utility/W.C, two double bedrooms, modern white four-piece bathroom suite, large secluded rear garden, garage and off-street parking. No Onward Chain. Viewings Highly Recommended!