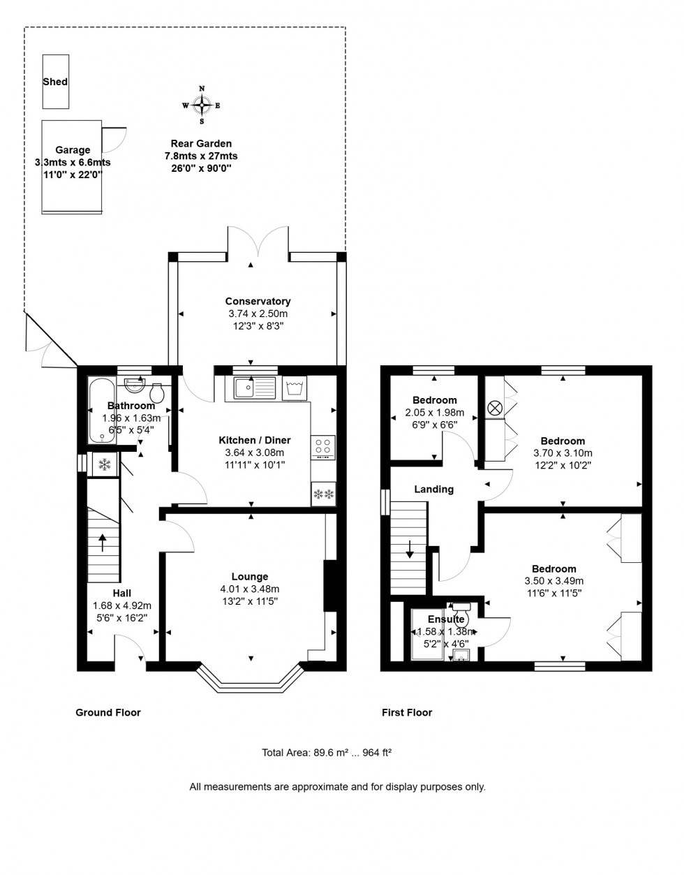
SPACIOUS & WELL PRESENTED THREE BEDROOM SEMI-DETACHED PROPERTY SITUATED IN THIS MUCH SOUGHT AFTER NO-THROUGH ROAD IDEALLY LOCATED WITHIN MOMENTS OF THE RIVER THAMES & CONVENIENTLY POSITIONED FOR STAINES TOWN CENTRE & MAINLINE TRAIN STATION. The property benefits from a spacious lounge, modern fitted kitchen/diner, conservatory, three well-proportioned bedrooms (en-suite to Bedroom 1), further modern white bathroom suite, large secluded rear garden and garage. No Onward Chain. Viewings Highly Recommended!
SPACIOUS & WELL PRESENTED THREE BEDROOM SEMI-DETACHED PROPERTY SITUATED IN THIS MUCH SOUGHT AFTER NO-THROUGH ROAD IDEALLY LOCATED WITHIN MOMENTS OF THE RIVER THAMES & CONVENIENTLY POSITIONED FOR STAINES TOWN CENTRE & MAINLINE TRAIN STATION. The property benefits from a spacious lounge, modern fitted kitchen/diner, conservatory, three well-proportioned bedrooms (en-suite to Bedroom 1), further modern white bathroom suite, large secluded rear garden and garage. No Onward Chain. Viewings Highly Recommended!