Orchard Way, Ashford, Surrey

Under Offer £625,000

bedrooms 3bathrooms 2receptions 2

WELL PRESENTED AND SPACIOUS THREE BEDROOM DETACHED BUNGALOW SITUATED ALONG THIS SOUGHT AFTER NO-THROUGH ROAD IDEALLY LOCATED FOR LOCAL MOTORWAY NETWORKS, ASHFORD TOWN CENTRE & HEATHROW AIRPORT. The property benefits from a spacious lounge/diner, modern kitchen/breakfast room with separate utility, three well proportioned bedrooms, two bath/shower rooms, well maintained grounds to front, rear and side, large timber workshop with light and power, garage and carport. Viewings Highly Recommended!

Covered Porch

With UPVC double glazed door leading to:

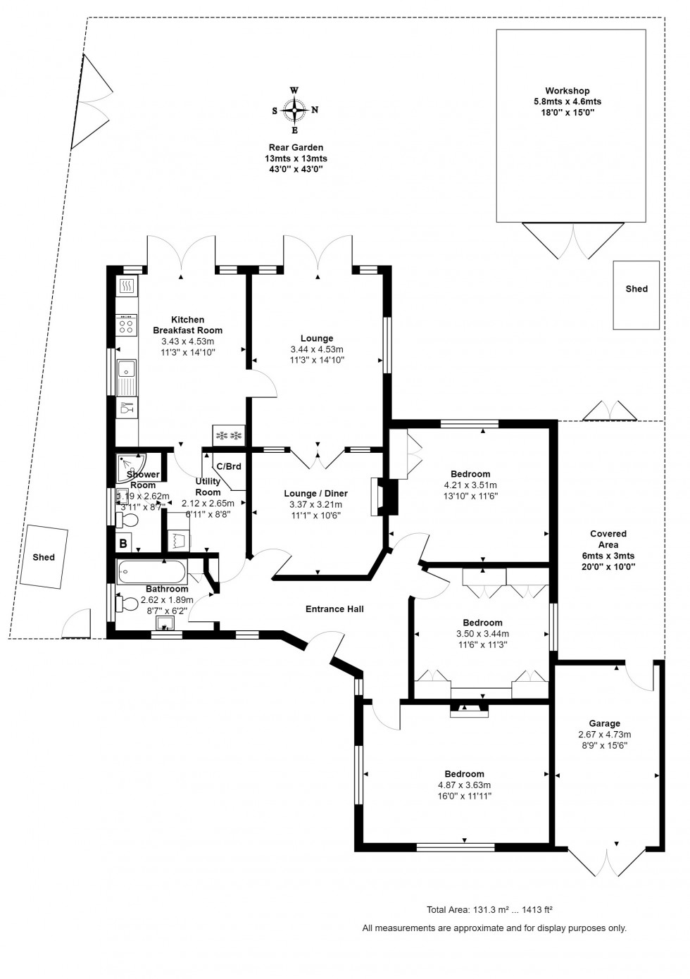
Entrance Hall

Light and power points, radiator, access to loft space and doors to:

Shower Room

Side aspect UPVC double glazed window, low level W.C, wash hand basin inset to cabinet, built-in shower unit, wall mounted boiler, heated towel rial, partly tiled walls.

Kitchen/Breakfast Room

Side aspect UPVC double glazed window and rear aspect UPVC double glazed French doors to garden, range of modern fitted units at eye and base level, roll edged worktops, 1 1/2 bowl sink drainer unit, built-in oven and hob with extractor over, space for American-style fridge/freezer, radiator.

Utility Room

Range of fitted units at eye and base level, heated towel rail, larder-cupboard, space for washing machine.

Lounge/Diner

Rear aspect UPVC double glazed French doors to Garden, side aspect UPVC double glazed window, radiator, glazed door to Dining Area, tiled fireplace, radiator.

Bedroom 1

Front and side aspect UPVC double glazed windows, light and power points, radiator, tiled fireplace.

Bedroom 2

Side aspect UPVC double glazed window, light and power points, radiator, range of built-in wardrobes.

Bedroom 3

Rear aspect UPVC double glazed window, light and power points, radiator, built-in wardrobes.

Bathroom

Front and side aspect UPVC double glazed windows, panel enclosed bath with shower over, low level W.C, wash hand basin, partly tiled walls, heated towel rail, light point.

Outside

Front Garden

Mainly laid to lawn, driveway leading to Carport & Garage.

Rear Garden

Paved patio area nearest to property, gravel area with shrub borders, outside light and power, large timber workshop with light and power.

Large Timber Workshop

With Light and power.

Garage & Carport

With front aspect twin doors, door to rear leading to Carport.

Floorplan for Orchard Way, Ashford, Surrey
instant online valuation

Book a valuation

Find out how much your property is worth