Laleham Village, Staines-upon-Thames, Surrey

Under Offer £499,950

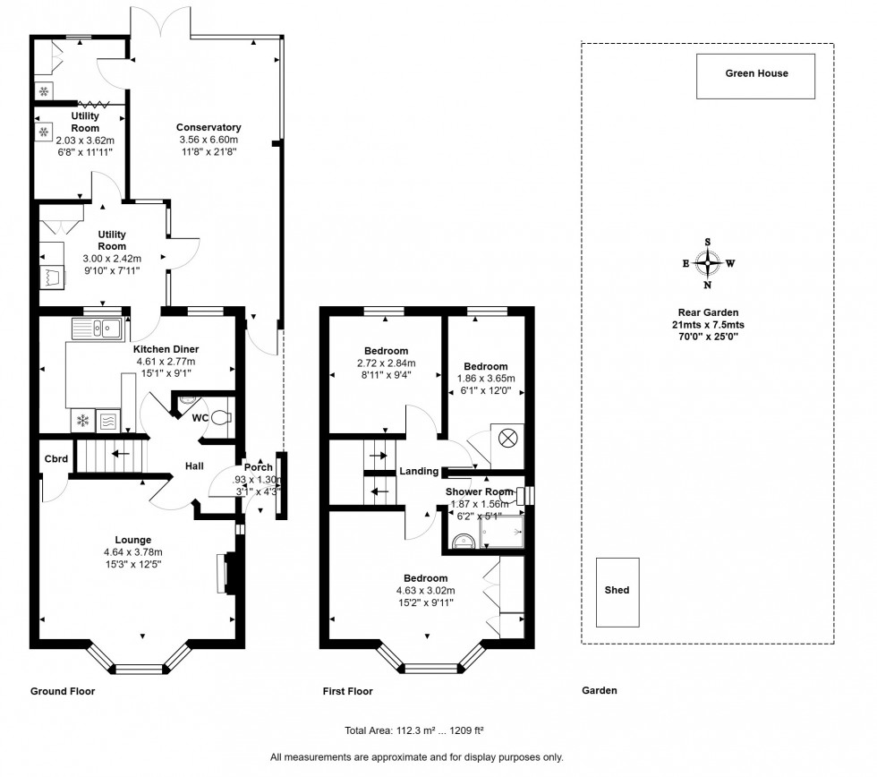
bedrooms 3bathrooms 1receptions 2

OFFERING GREAT SCOPE FOR IMPROVEMENT & EXTENSION (S.T.R.P.P), THIS CHARMING PROPERTY IS IDEALLY LOCATED ALONG THIS MUCH SOUGHT AFTER RIVERSIDE LANE IN THE HEART OF LALEHAM VILLAGE CONVENIENTLY POSITIONED FOR SHEPPERTON, STAINES-UPON-THAMES & ASHFORD TOWN CENTRES. The property benefits from a spacious lounge, fitted kitchen/diner, downstairs W.C, large conservatory, utility room, three well-proportioned bedrooms, first floor bathroom, large secluded rear garden and off-street parking. No Onward Chain. Viewings Highly Recommended!

  • 70FT SOUTH FACING REAR GARDEN
  • OFF-STREET PARKING
  • MUCH SOUGHT AFTER NO-THROUGH ROAD
  • HEART OF LALEHAM VILLAGE - WITHIN WALKING DISTANCE OF RIVER THAMES
  • NO ONWARD CHAIN
Floorplan for Laleham Village, Staines-upon-Thames, Surrey
instant online valuation

Book a valuation

Find out how much your property is worth